Refined Apartment in San Vigilio di Marebbe
Features
- Balcone/i
- Deposito
- Arredamento incluso
- Vista aperta
- Vista montagna
- Pavimenti in legno
- Parcheggio privato
- Garage
- Esposizione Sud - Ovest
Energy Class
In the heart of the Dolomites, just 150 meters from the Miara cable car and a few minutes’ walk from the center of San Vigilio di Marebbe, we are pleased to offer for sale a bright three-bedroom apartment located on the first floor of a charming traditional building.
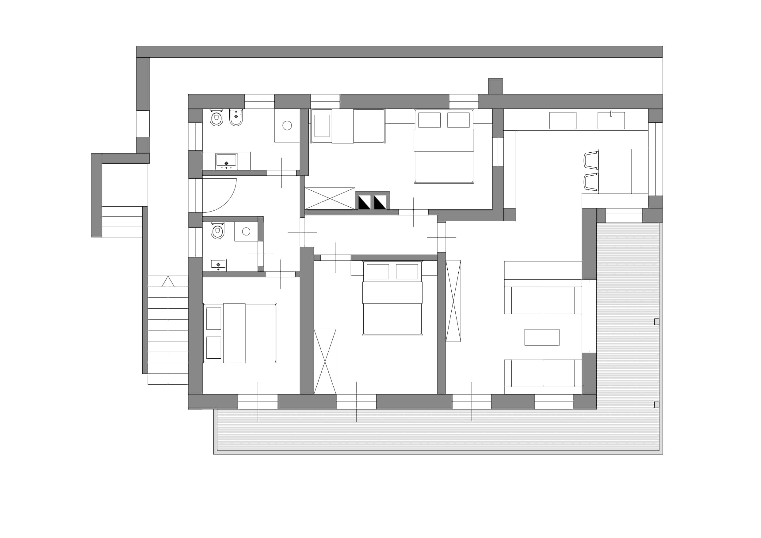
The apartment, with a commercial surface of 115.70 sqm, opens onto a spacious entrance hall leading to the living room with kitchen—the convivial heart of the home—with direct access to the southwest-facing balcony: an ideal space to enjoy the sun and the view after a day on the slopes or a mountain hike.
The sleeping area includes three bedrooms, perfect for accommodating family and guests, as well as a main bathroom with a window and a second, smaller yet functional bathroom.
The property is completed by a covered parking space (compact in size) and a shared storage room.
Key features
- Strategic location: just steps from the ski slopes and the village center
- Southwest exposure, bright and sunny
- Convenient setting, with shops and services within walking distance
- Excellent condition
Important note: the property is subject to a guesthouse license (art. 128-ter L.P. 11.08.1997 n. 12), making it particularly suitable as an investment for holiday rentals in one of the most sought-after destinations in the Dolomites.
A unique opportunity for those seeking a mountain retreat or a great investment in one of South Tyrol’s most renowned locations.
Refined Apartment in San Vigilio di Marebbe
Strada Pelegrin, San Vigilio di Marebbe, Italia
Three-bedroom apartment
Type
588676
Property ID
3
Rooms
2
Bathrooms
115
Square Meters
- Description
- Address
- Details
- Features
- Floorplans
Description
In the heart of the Dolomites, just 150 meters from the Miara cable car and a few minutes’ walk from the center of San Vigilio di Marebbe, we are pleased to offer for sale a bright three-bedroom apartment located on the first floor of a charming traditional building.
The apartment, with a commercial surface of 115.70 sqm, opens onto a spacious entrance hall leading to the living room with kitchen—the convivial heart of the home—with direct access to the southwest-facing balcony: an ideal space to enjoy the sun and the view after a day on the slopes or a mountain hike.
The sleeping area includes three bedrooms, perfect for accommodating family and guests, as well as a main bathroom with a window and a second, smaller yet functional bathroom.
The property is completed by a covered parking space (compact in size) and a shared storage room.
Key features
- Strategic location: just steps from the ski slopes and the village center
- Southwest exposure, bright and sunny
- Convenient setting, with shops and services within walking distance
- Excellent condition
Important note: the property is subject to a guesthouse license (art. 128-ter L.P. 11.08.1997 n. 12), making it particularly suitable as an investment for holiday rentals in one of the most sought-after destinations in the Dolomites.
A unique opportunity for those seeking a mountain retreat or a great investment in one of South Tyrol’s most renowned locations.
Address
Open in Google MapsAddress
Strada Pelegrin
City
San Vigilio di Marebbe
ZIP Code
39030
Location
Dolomiti
Country
Italia
Details
Aggiornato a Giugno April 9, 2026 at 9:44 AM
Property ID:
588676
Request:
Register for Price
Square Meters:
115
Rooms:
3
Bathrooms:
2
Construction Year:
Type:
Quadrilocale +
Contract:
For Sale
Features
Balcone/i
Deposito
Arredamento incluso
Vista aperta
Vista montagna
Pavimenti in legno
Parcheggio privato
Garage
Esposizione Sud - Ovest
Floorplans
Description
Appartamento quadrilocale a San Vigilio di Marebbe
Video
No video available
Virtual Tour
Classe Energetica
- A+
- A
- B
- C
- D
- E
- F
- G
- H
Similar Properties
Edelweiss.Re Real Estate & Design


