Casa a Schiera a San Leonardo, Badia
Caratteristiche
- Balcone/i
- Camino
- Cantina
- CasaClima
- Domotica
- Esposizione Sud - Ovest
- Giardino privato
- Giardino comune
- Ingresso indipendente
- Lavanderia
- Magazzino
- Deposito
- Parcheggio comune
- Pavimenti in legno
- Veranda
- Riscaldamento autonomo
- Tripli vetri
- Soffitti con travature a vista
- Isolamento a cappotto
- Boiseries
- Terrazzo
- Ventilazione meccanica
- Wi-Fi
Classe Energetica
Siamo lieti di presentarvi una casa a schiera sviluppata su quattro livelli a San Leonardo in Badia, a breve distanza da tutti i servizi dell’area e comoda per raggiungere tutti i paesi circostanti.
L’immobile sarà oggetto di una riqualificazione edilizia integrale volta al raggiungimento di elevateperformance energetiche in linea con gli standard CasaClima e all’integrazione di sistemi domotici avanzati per la gestione remota. L’intervento prevede il rifacimento degli impianti elettrico e termo-idraulico, della copertura, degli isolamenti, delle partizioni interne, dei bagni, delle scale e delle pavimentazioni. La facciata principale prevederà inoltre una veranda.
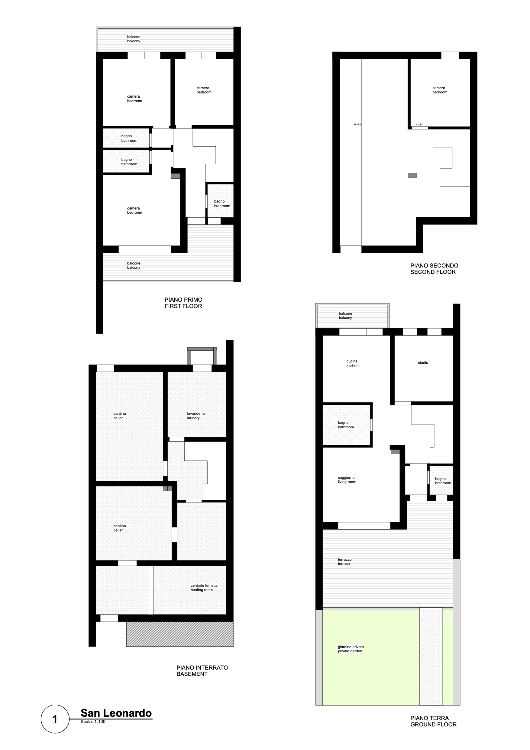
La casa, nello stato di fatto, si compone:
- Al Piano Interrato, da un accesso secondario dal giardino di proprietà, due ampie cantine, un locale dove è inserita la cisterna del gasolio per il riscaldamento, una lavanderia e il vano scala che unisce i vari livelli.
- Al Piano Terra è presente, oltre al giardino privato di circa 40 mq, l’ingresso principale, un ampio balcone di circa 35 mq, un secondo balcone rivolto a Est, un corridoio distributivo, un soggiorno, un bagno, una cucina, uno studio e il vano scale.
- Al Piano Primo, da tre camere, due bagni completi e un bagno giorno, due balconi con vista a est e a ovest e il vano scala.
- Al Piano Sottotetto, caratterizzato dalle travature a vista, da una camera e uno spazio aperto con altezze che si riducono fino ai 150 cm.
Sebbene l’immobile non disponga di parcheggio privato, la sua posizione privilegiata offre la comodità di numerosi parcheggi pubblici situati a pochi passi dal complesso, garantendo così un facile accesso alla casa.
La proprietà, vista l’imminente ristrutturazione, rappresenta un’opportunità unica per plasmare la casa dei vostri sogni. Avrete infatti la libertà di personalizzare la disposizione degli spazi interni e la scelta delle finiture, creando un ambiente che rispecchi perfettamente il vostro stile di vita e le vostre esigenze.
Il nostro studio di interior design sarà felice di guidarvi nella realizzazione di uno chalet esclusivo e distintivo, curato in ogni dettaglio per un’esperienza abitativa senza pari.
A valorizzare ulteriormente questa opportunità, vi sono:
- La pista da sci, facilmente raggiungibile a piedi;
- La prossimità a supermercato e negozi;
- La vicinanza al centro del paese, raggiungibile con una breve passeggiata.
Contattaci ora per scoprire le opzioni d’acquisto disponibili e scegli quella più adatta alle tue esigenze.
Casa a Schiera a San Leonardo, Badia
Str. S. Linert, 55, 39036 Badia BZ, Italy, San Leonardo,
Casa a schiera
Tipologia
446013
ID Proprietà
4
Camere
5
Bagni
253
Mq.
1980
Anno di Costruzione
- Descrizione
- Indirizzo
- Dettagli
- Caratteristiche
- Planimetrie
Descrizione
Siamo lieti di presentarvi una casa a schiera sviluppata su quattro livelli a San Leonardo in Badia, a breve distanza da tutti i servizi dell’area e comoda per raggiungere tutti i paesi circostanti.
L’immobile sarà oggetto di una riqualificazione edilizia integrale volta al raggiungimento di elevateperformance energetiche in linea con gli standard CasaClima e all’integrazione di sistemi domotici avanzati per la gestione remota. L’intervento prevede il rifacimento degli impianti elettrico e termo-idraulico, della copertura, degli isolamenti, delle partizioni interne, dei bagni, delle scale e delle pavimentazioni. La facciata principale prevederà inoltre una veranda.
La casa, nello stato di fatto, si compone:
- Al Piano Interrato, da un accesso secondario dal giardino di proprietà, due ampie cantine, un locale dove è inserita la cisterna del gasolio per il riscaldamento, una lavanderia e il vano scala che unisce i vari livelli.
- Al Piano Terra è presente, oltre al giardino privato di circa 40 mq, l’ingresso principale, un ampio balcone di circa 35 mq, un secondo balcone rivolto a Est, un corridoio distributivo, un soggiorno, un bagno, una cucina, uno studio e il vano scale.
- Al Piano Primo, da tre camere, due bagni completi e un bagno giorno, due balconi con vista a est e a ovest e il vano scala.
- Al Piano Sottotetto, caratterizzato dalle travature a vista, da una camera e uno spazio aperto con altezze che si riducono fino ai 150 cm.
Sebbene l’immobile non disponga di parcheggio privato, la sua posizione privilegiata offre la comodità di numerosi parcheggi pubblici situati a pochi passi dal complesso, garantendo così un facile accesso alla casa.
La proprietà, vista l’imminente ristrutturazione, rappresenta un’opportunità unica per plasmare la casa dei vostri sogni. Avrete infatti la libertà di personalizzare la disposizione degli spazi interni e la scelta delle finiture, creando un ambiente che rispecchi perfettamente il vostro stile di vita e le vostre esigenze.
Il nostro studio di interior design sarà felice di guidarvi nella realizzazione di uno chalet esclusivo e distintivo, curato in ogni dettaglio per un’esperienza abitativa senza pari.
A valorizzare ulteriormente questa opportunità, vi sono:
- La pista da sci, facilmente raggiungibile a piedi;
- La prossimità a supermercato e negozi;
- La vicinanza al centro del paese, raggiungibile con una breve passeggiata.
Contattaci ora per scoprire le opzioni d’acquisto disponibili e scegli quella più adatta alle tue esigenze.
Indirizzo
Apri in Google MapsIndirizzo
Str. S. Linert, 55, 39036 Badia BZ, Italy
Città
San Leonardo
CAP
39036
Località
Dolomiti
Nazione
Dettagli
Aggiornato a Giugno aprile 9, 2026 at 9:36 AM
ID Proprietà:
446013
Richiesta:
Registrati per il prezzo
Mq.:
253
Camere:
4
Bagni:
5
Anno di Costruzione:
1980
Tipologia:
Casa a schiera
Contratto:
In Vendita
Caratteristiche
Balcone/i
Camino
Cantina
CasaClima
Domotica
Esposizione Sud - Ovest
Giardino privato
Giardino comune
Ingresso indipendente
Lavanderia
Magazzino
Deposito
Parcheggio comune
Pavimenti in legno
Veranda
Riscaldamento autonomo
Tripli vetri
Soffitti con travature a vista
Isolamento a cappotto
Boiseries
Terrazzo
Ventilazione meccanica
Wi-Fi
Planimetrie
Descrizione
Planimetria - Floor plan
Video
Nessun video disponibile
Tour Virtuale
Classe Energetica
- Classe Energetica: B
- A+
- A
-
| Classe Energetica BB
- C
- D
- E
- F
- G
- H
Proprietà Simili
Edelweiss.Re Real Estate & Design


